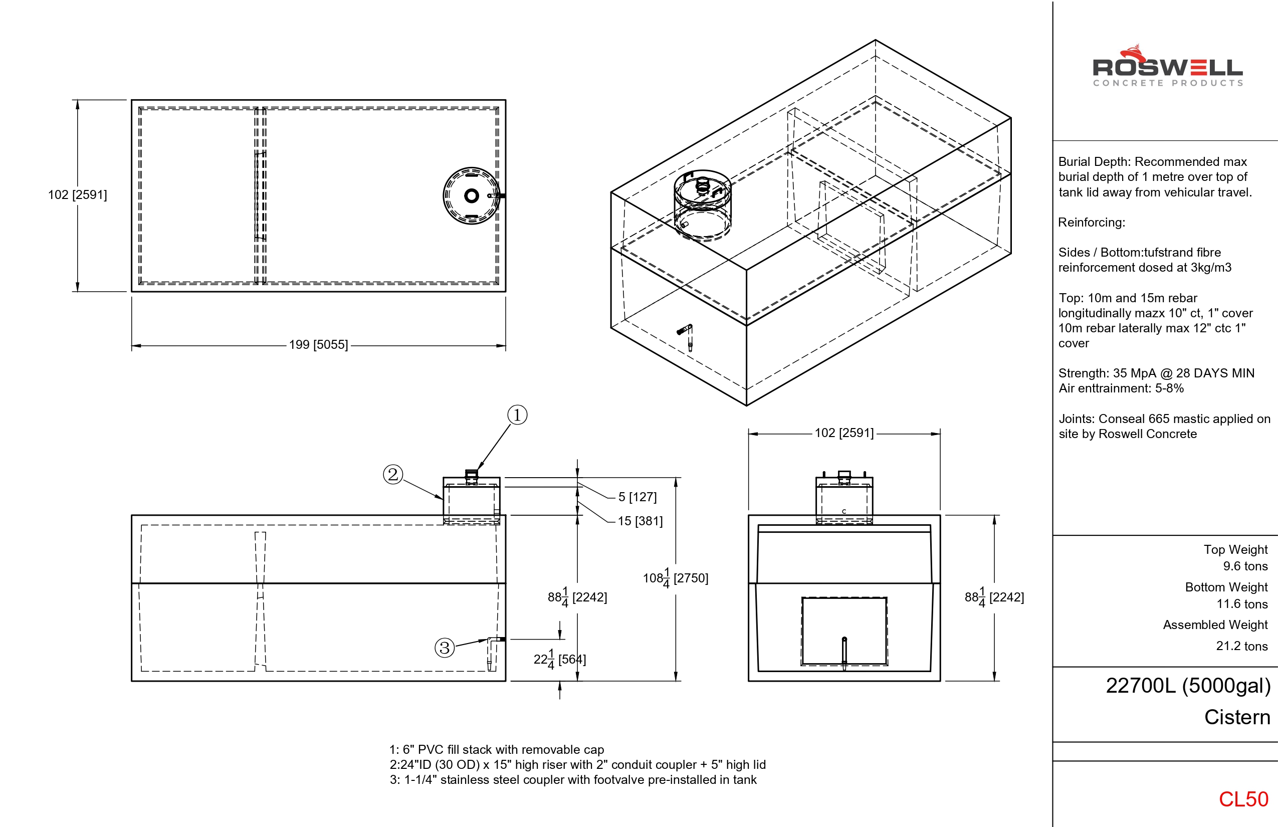
Comes with:
1 (one) Polylok 24" ID Access Lid with 6" fill stack
- also available with optional concrete 24"ID access
1-1/4" foot valve assembly pre-plumbed
1-1/4" threaded connection for water line
5000gal (22,700L) Cistern
C$7,740.00Price
Excluding Sales Tax
199" long x 102" wide x 88" high


















