This tank is designed with ease of install in mind. It has a low profile which really helps in high water table, bedrock and heavy clay situations!
Comes with:
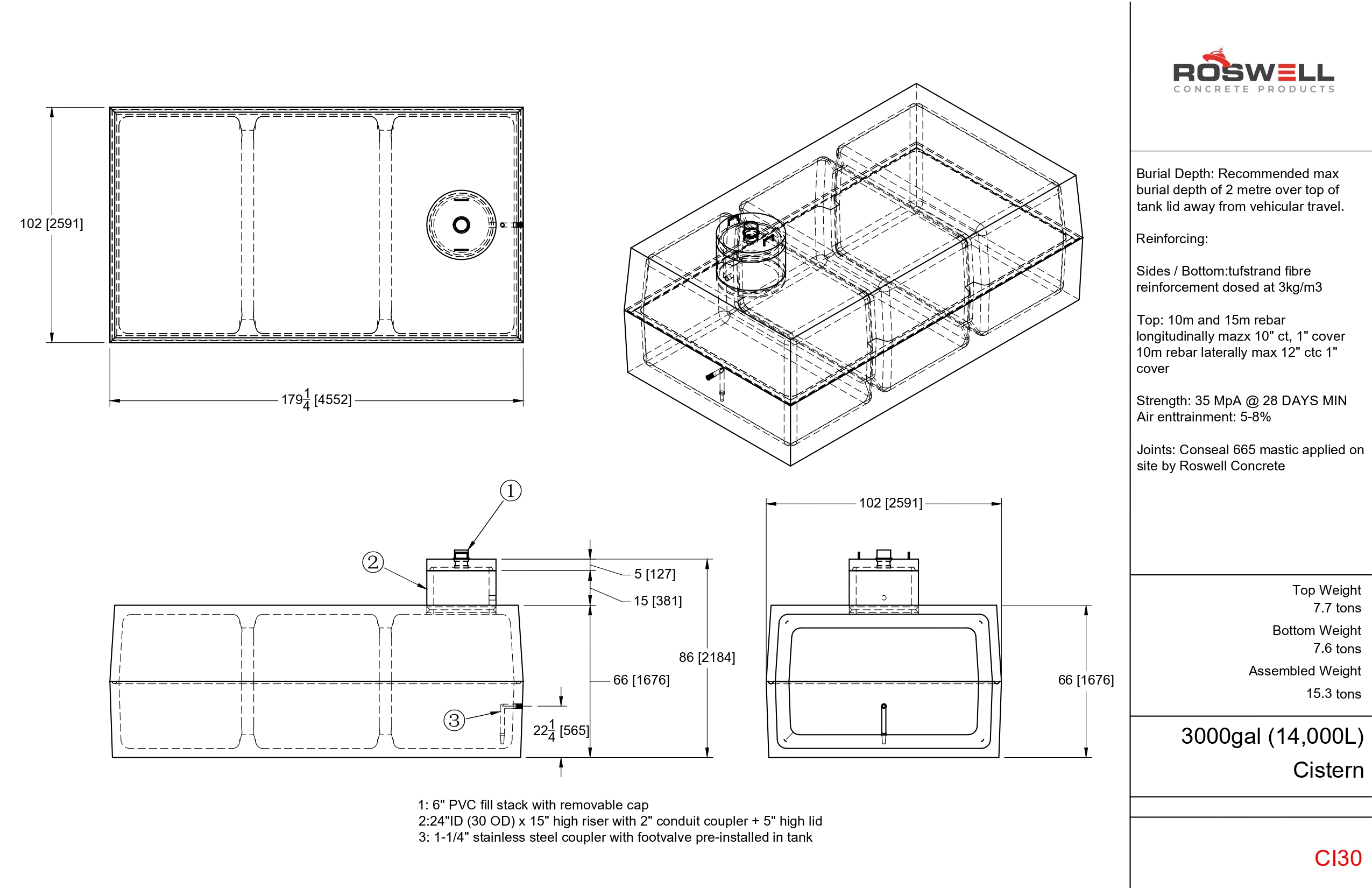
1 (one) Polylok 24" ID Access Lid with 6" fill stack
- also available with optional concrete 24"ID access
1-1/4" foot valve assembly pre-plumbed
1-1/4" threaded connection for water line
3000gal (14,000L) Cistern
C$5,110.00Price
Excluding Sales Tax
179" long x 102" wide x 66" high


















